HIGH STREET, SWANAGE

These spacious premises, currently a Church, are situated on the High Street a short distance from the Town Square and within 500 metres of the seafront and beach. We consider that the site is eminently suitable for redevelopment, subject to planning consent, and applicants are requested to satisfy themselves concerning this issue before submitting offers. Ref: HIG2081
Bedrooms

0

0

Receptions

0

Share this property
These spacious premises, currently a Church, are situated on the High Street a short distance from the Town Square and within 500 metres of the seafront and beach. The building is thought to date back to the 1800s and is of stone construction under a pitched roof covered with slate.

We consider that the site is eminently suitable for redevelopment, subject to planning consent, and applicants are requested to satisfy themselves concerning this issue before submitting offers.

Swanage lies at the eastern tip of the Isle of Purbeck delightfully situated between the Purbeck Hills. It has a fine, safe, sandy beach, and is an attractive mixture of old stone cottages and more modern properties, all of which blend in well with the peaceful surroundings. To the south is Durlston Country Park renowned for being the gateway to the Jurassic Coast and World Heritage Coastline.

LEGAL COSTS
Each party is to be responsible for their own legal costs incurred in the transaction.

BUSINESS RATES
Churches are exempt from business rates. Rateable value to be assessed, if used for commercial purposes.

EPC
Not Applicable.

SERVICES
All mains services connected.

VIEWINGS
All viewings are strictly by appointment through the Sole Agents, Corbens, 01929 422284. The postcode for this property is BH19 2NX.

Property Ref HIG2081

NOTE: These particulars are intended only as a guide to prospective Buyers/Tenants to enable them to decide whether to make further enquiries with a view to taking up negotiations but they are otherwise not intended to be relied upon in any way for any purpose whatsoever and accordingly neither their accuracy nor the continued availability of the property is in any way guaranteed and they are furnished on the express understanding that neither the Agents nor the Vendors are to be or become under any liability or claim in respect of their contents. Any prospective Tenant must satisfy himself by inspection or otherwise as to the correctness of the particulars contained.

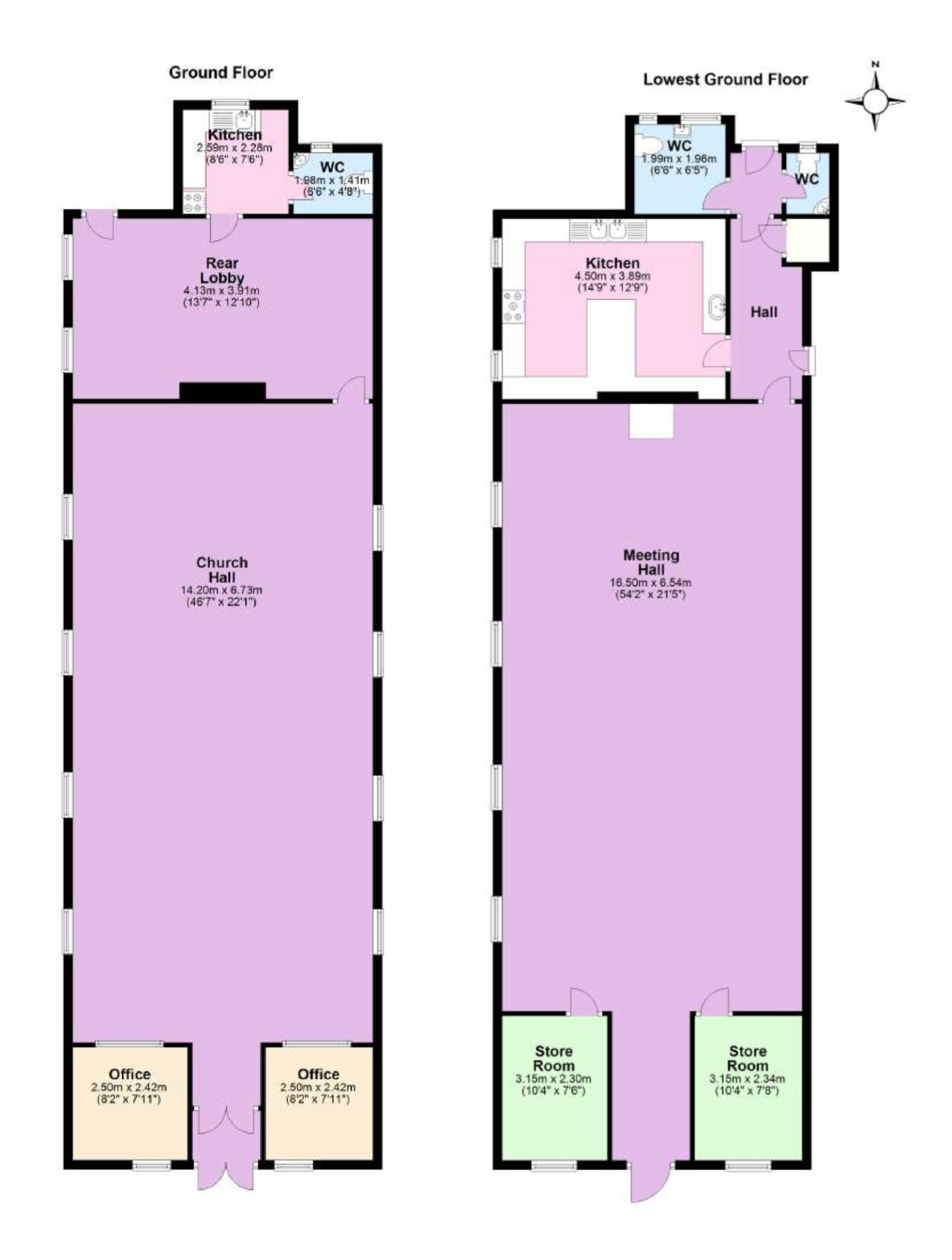
Floor Plan
 
 
Click to view : Brochure

Viewing Request

    This form collects your name, email and content so that we can keep track of the comments placed on the website. By submitting this form you accept our Privacy Policy. For more info check our privacy policy where you'll get more info on where, how and why we store your data.

    Property Enquiry

      This form collects your name, email and content so that we can keep track of the comments placed on the website. By submitting this form you accept our Privacy Policy. For more info check our privacy policy where you'll get more info on where, how and why we store your data.